Laura Villeret                                                               

+ League studio
Esquisse - Chantier
In progress
Aarschot, BE
2019

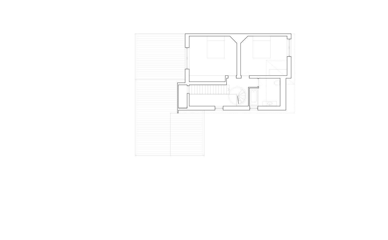
Half House